En venta

Venta

22.000€

Ref: 1384. Casa/Unifamiliar, Venta. PONZANO

Compartir

Imprimir

Habitaciones

5

Cuartos de baño

1

114

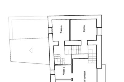
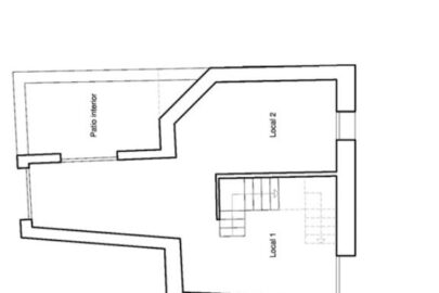
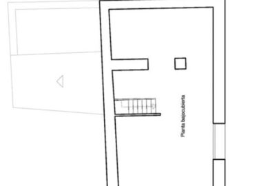
Descripción

VENTA DE CASA CON HUERTO EN PONZANO.
Vivienda para reformar de 114 m2 distribuidos en dos plantas, con cocina con fuego tierra, 5 habitaciones, 1 baño.Tiene un huerto de unos 100m2. Ideal para reformar a tu gusto en el bonito pueblo de Ponzano (Huesca) situado a los pies del Parque Natural de la Sierra y los Cañones de Guara.
Muy bien comunicada a 15 Km de Barbastro y 30 Km de Huesca.
***Contacta con nosotros para visitarla lo antes posible ***

Situación

Propiedades similares

SE VENDE CASA EN NACHÁ. Casa de pueblo aislada de…

Habitaciones

3

Cuartos de baño

1

Área

162

Ref: 2451. Casa/Unifamiliar, Venta. NACHA

45.000€

SE VENDE CASA HISTORICA EN EL CENTRO URBANO DE MONZON.…

Habitaciones

7

Cuartos de baño

7

Área

707

Ref: 794. Casa/Unifamiliar, Venta. MONZON

450.000€

Esta web está financiada por la Unión Europea - Next Generation EU