En venta

Venta

65.000€

Ref: 1865. Casa/Unifamiliar, Venta. MONDOT

Compartir

Imprimir

Habitaciones

4

Cuartos de baño

1

210

Descripción

VENTA DE CASA EN MONDOT (Huesca).
¡TU PROYECTO DE VIDA EN EL PIRINEO! CASA DE PIEDRA CON ALMA EN MONDOT (AÍNSA)
¿Buscas un refugio auténtico donde el tiempo se detiene? Te presentamos esta espectacular casa de pueblo de 210 m² ubicada en Mondot, una joya de tranquilidad en el municipio de Ainsa-Sobrarbe, uno de los pueblos más bonitos de España.
EL ESPACIO: UN LIENZO EN BLANCO DE 3 PLANTAS
Esta vivienda conserva la esencia de la arquitectura tradicional aragonesa con muros de piedra y tejado de pizarra. Su distribución ofrece infinitas posibilidades para una rehabilitación a tu gusto:
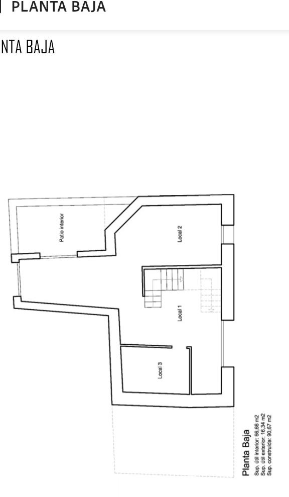
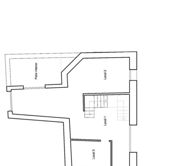
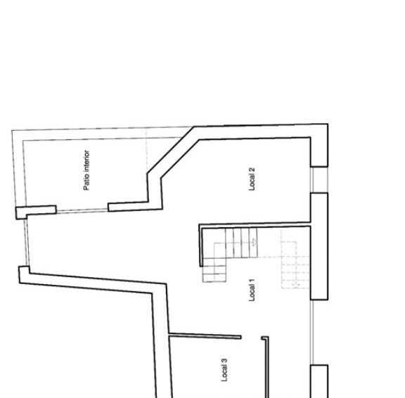
Planta Baja: Entrada por un precioso portal que da paso a un patio interior con una antigua alcoba. Acceso directo a los corrales traseros, ideales para convertirlos en un jardín privado o terraza.
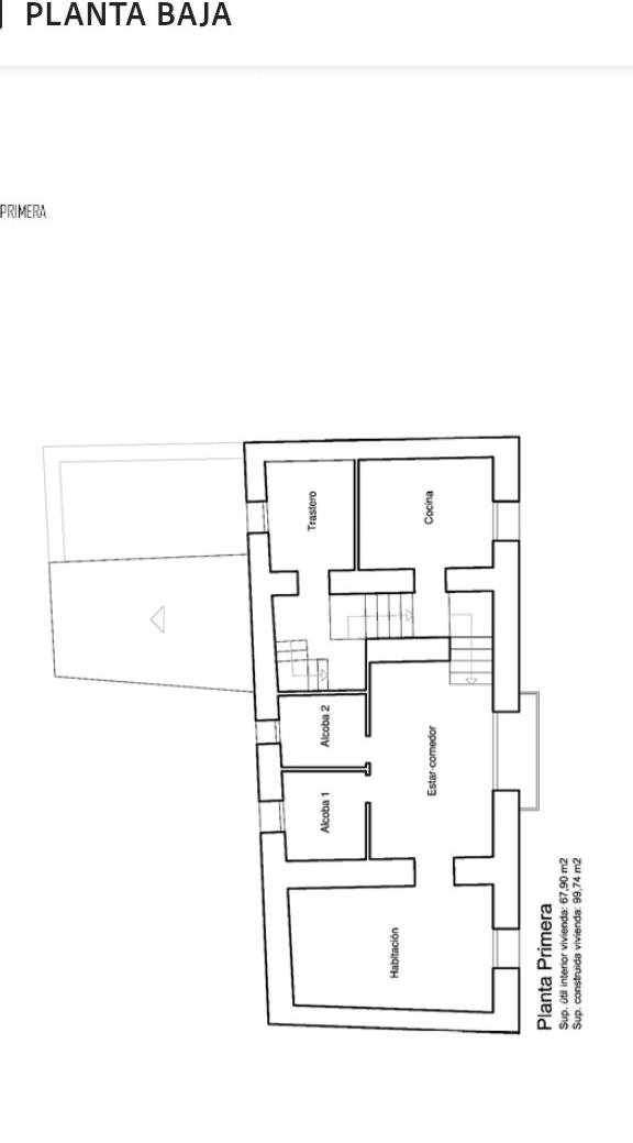
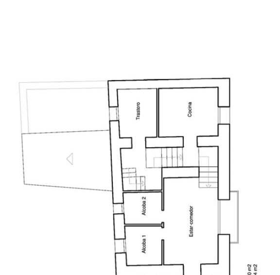
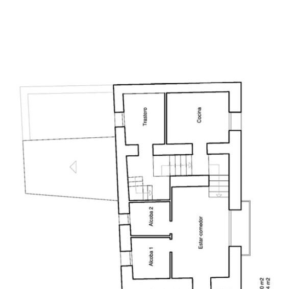
Planta Primera: El corazón de la casa. Cuenta con un acogedor fuego de tierra (chimenea tradicional), zona de cocina, almacén y un ala derecha con un gran salón-comedor y tres dormitorios.
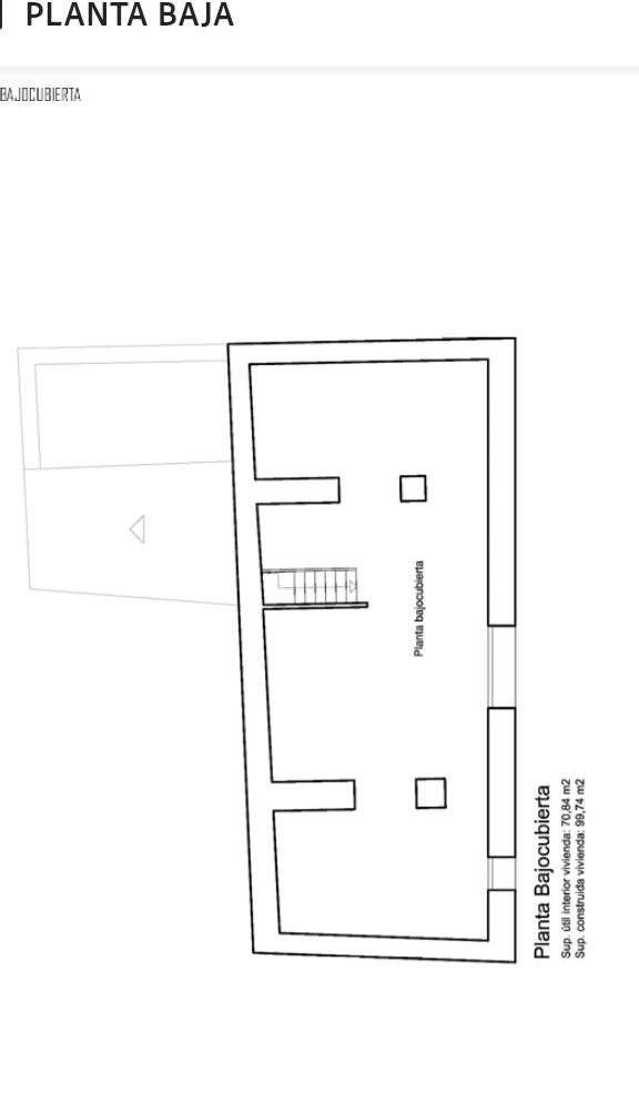
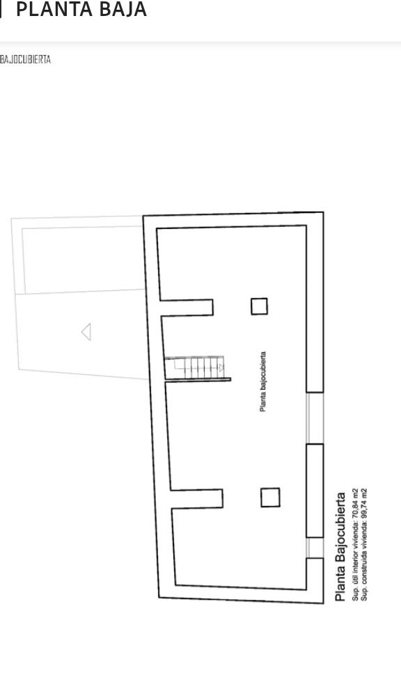
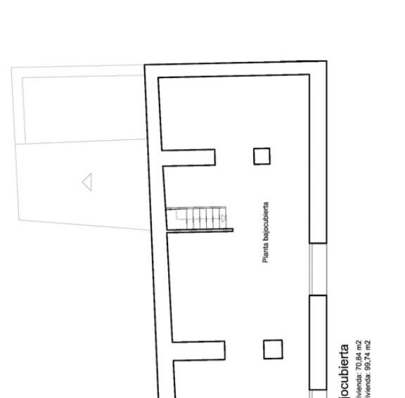
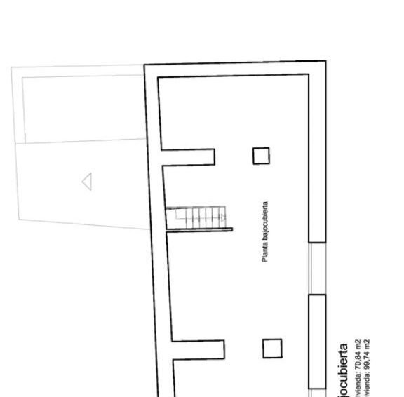
Planta Tercera (Falsas): Espacio bajo cubierta totalmente diáfano, perfecto para crear un estudio independiente, suite de lujo o zona de trabajo con vistas.
POTENCIAL DE REFORMA
La propiedad requiere una reforma integral (fontanería, electricidad, estructura y tejado), lo que te permite rediseñar cada rincón. La excelente base de piedra y su ubicación en el valle del río Susía garantizan una inversión segura y con carácter.
UBICACIÓN PRIVILEGIADA
Vive rodeado de naturaleza salvaje y a un paso de la civilización:
A pocos km de Aínsa: Servicios, gastronomía y encanto medieval.
Paraíso Outdoor: Puerta de entrada al Parque Nacional de Ordesa y Monte Perdido, Sierra de Guara y la Cueva del Oso en Tella.
Deporte y Ocio: Senderismo, BTT, deportes de aguas bravas en el río Ésera y cercanía a las estaciones de esquí de Formigal y Candanchú.
Cultura del vino: A un paso de las mejores bodegas de la D.O. Somontano.
✨ Si buscas paz, historia y un proyecto único en el Pirineo aragonés, esta es tu oportunidad.

Situación

Propiedades similares

Casa con amplio almacen, terraza-zona de recreo, pequeña buhardilla y…

Habitaciones

6

Cuartos de baño

2

Área

472

Ref: 2326. Casa/Unifamiliar, Venta. MONZON

135.000€

SE VENDE CASA EN AZANUY. Casa de pueblo de 346…

Habitaciones

4

Cuartos de baño

1

Área

346

Ref: 2251. Casa/Unifamiliar, Venta. AZANUY

55.000€

Esta web está financiada por la Unión Europea - Next Generation EU